Rim STUDIO
都内では類を見ない面積を有するリハーサルスタジオ。
水辺の街・天王洲に集うクリエイティブな人々とともに、新たな文化育成の場を目指します。
OVERVIEW スペースの概要
SPEC スペック
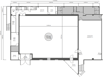
面積
473.7 m² / 143.3 坪(打ち合わせスペース含む)
利用料金
平日 155,000円/1日(税別)
土日祝 210,000円/1日(税別)

ACCESS アクセス
- 所在地
東京都品川区東品川1-3-15 (TENNOZ Rim内)
- 交通アクセス
りんかい線 天王洲アイル駅 B出口より徒歩9分
東京モノレール羽田空港線 天王洲アイル駅 中央口より徒歩9分
京急本線 北品川駅より徒歩9分
JR 品川駅 港南口より徒歩14分
関連するサービス
- TOP
- SERVICE
- EVENT SPACE
- Rim STUDIO




