T-LOTUS M
Shipdeck space floating on the Tennoz canal, designed under preeminent architect Kengo Kuma. Enjoy the canal breeze and the light dancing off the water—all from on board. An unparalleled space where you can take a sea voyage right inside the big city.
OVERVIEW
SPEC
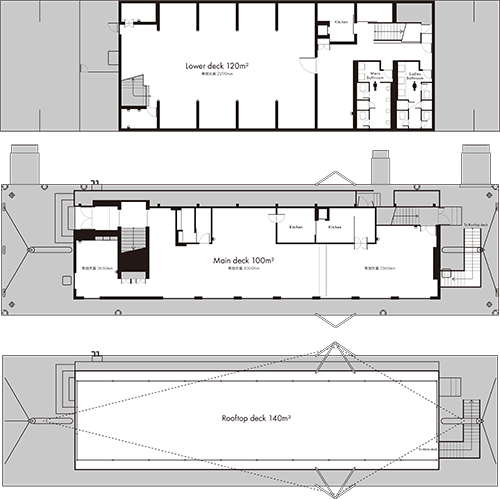
Site Area
Rooftop: 140 m²
Main Deck: 100 m²
Lower Deck: 120 m²
Basic Hours of Service
10:00 AM – 10:00 PM (12 hours)
* Time for preparation and cleanup is included in the whole rental time.

ACCESS
- Address
- Across to 2-1 Higashi-Shinagawa, Shinagawa-ku, Tokyo 
- Access
- 7 minute walk from Tokyo Waterfront Area Rapid Transit Rinkai Line “Tennoz Isle Station” B Exit 
 8 minute walk from Tokyo Monorail Haneda Airport Line “Tennoz Isle Station” Central Exit
OTHER SERVICES
CONTACT
- TOP
- SERVICE
- EVENT SPACE
- T-LOTUS M
 
                                        










